property

Maison à vendre 5 pièces • 3 chambres • 99 m2

342 000 €

Maison à vendre 5 pièces • 3 chambres • 99 m2 Breux-Jouy

342 000 €

Prix au m² : 3 455 € / m²

Référence  2752

decoration todo
Abeille Conseil Immobilier

59 annonces

Saint-Chéron

Description du bien

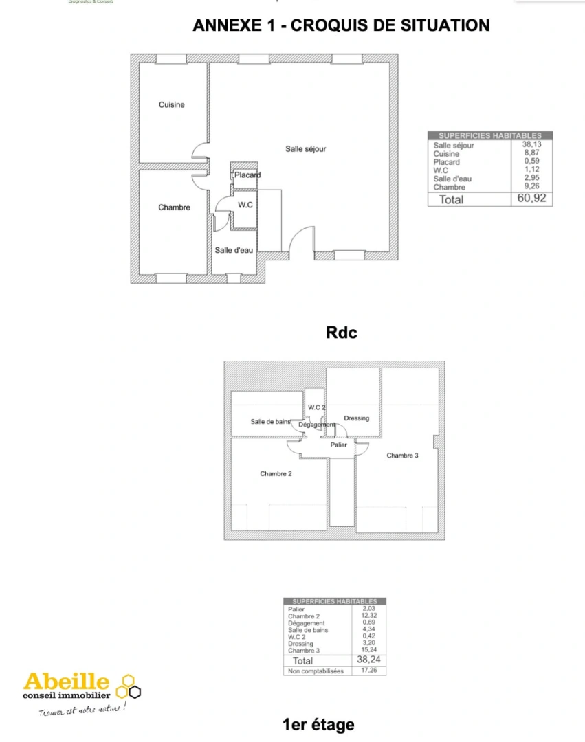
Une maison traditionnelle comprenant au rez-de-chaussée : entrée sur salon/salle à manger (38m2) avec cheminée insert, cuisine aménagée, chambre (9,26m2), salle d’eau et Wc indépendant, rangements. A l’étage dégagement, 2 grandes chambres (12,32m2 et 15,24m2), salle de bains et rangements, wc indépendant. Garage indépendant 1 voiture (21m2) et rangements au-dessus, abri de jardin (9m2), le tout édifié sur un terrain de 671m2. A saisir rapidement !

Afficher plus Afficher moins

Caractéristiques du bien

  • Intérieur

    • Surface 99 m2
    • 3 Chambres
    • 2 WC
    • 1 Salle de bain/eau
  • Extérieur

    • Jardin de 671 m2
  • Surfaces annexes

    • Garage
  • Environnement

    • Exposition SUD

Diagnostics énergétiques

Consommation énergétique

Emission de gaz

LOCALISATION DU BIEN

Quartier Breux-Jouy à Breux-Jouy

Points d'intérêts

Transports

Éducation

Services publics

Commerces & Services

Géorisque

Les informations sur les risques auxquels ce bien est exposé sont disponibles sur le site Géorisques https://www.georisques.gouv.fr

Informations financières

A propos du prix

Prix de vente

342 000 €

Prix au m² : 3 455 € / m²

  • Taxe foncière
    1 182 € / an

Calcul de vos mensualités

Simulez vos prêts en quelques clics !

*Les données de ce simulateur sont indicatives et non contractuelles. Calcul hors assurance et frais de garantie.

Vos mensualités
1173 € / mois
  • Montant emprunté
  • Coût des intérêts
  • Coût des intérêts :

    112490
    (d’après le taux d’intérêt annuel moyen : 3.3 %)
decoration
Abeille Conseil Immobilier

59 annonces

Saint-Chéron

Ce bien vous intéresse ?
*
*
*
*
*
*