property

Studio à vendre 1 pièce • 29.87 m2

108 000 €

Studio à vendre 1 pièce • 29.87 m2 Tremblay-en-France

108 000 €

Prix au m² : 3 616 € / m²

Référence  735.

decoration todo
AF IMMOBILIER

27 annonces

Tremblay-en-France

Description du bien

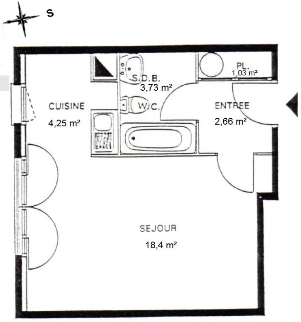
Situé au 4? et dernier étage d’un immeuble bien entretenu, ce studio d'environ 30m2 bénéficie d’un cadre de vie agréable dans un environnement calme à Tremblay-en-France. Il offre une entrée avec placard intégré, une salle de bain avec WC, ainsi qu’un séjour en L de 18,40 m². Le coin cuisine avec fenêtre, légèrement séparé, permet une organisation agréable et fonctionnelle de l’espace de vie. Situé dans une zone calme, il bénéficie d’une localisation pratique : 20 minutes à pied de la gare du Vert Galant et un accès rapide aux transports grâce aux bus desservant la gare en quelques minutes. Une place de parking privative en sous-sol vient parfaire ce bien. Idéal pour un premier achat ou un investissement locatif, alliant confort et praticité. ??À compter du 1er janvier 2026, en raison des nouvelles réglementations (électricité et petites surfaces), le DPE de ce logement sera automatiquement reclassé en classe D. ??

Afficher plus Afficher moins

Caractéristiques du bien

  • Intérieur

    • Surface 29.87 m2
    • 1 WC
    • 1 Salle de bain/eau
    • Cuisine SEMI-EQUIPEE
  • Surfaces annexes

    • Etage 4
    • Garage
  • Copropriété

    • Nombre de lots: 111
  • Accessibilité

    • Accès PMR

Diagnostics énergétiques

Consommation énergétique

Emission de gaz

LOCALISATION DU BIEN

Quartier Centre Ville à Tremblay-en-France

Points d'intérêts

Transports

Éducation

Services publics

Commerces & Services

Géorisque

Les informations sur les risques auxquels ce bien est exposé sont disponibles sur le site Géorisques https://www.georisques.gouv.fr

Informations financières

A propos du prix

Prix de vente

108 000 €

Prix au m² : 3 616 € / m²

  • Charge de copropriété
    91 € / an

    Montant annuel de la quote-part du budget prévisionnel des dépenses courantes.

  • Taxe foncière
    856 € / an

Calcul de vos mensualités

Simulez vos prêts en quelques clics !

*Les données de ce simulateur sont indicatives et non contractuelles. Calcul hors assurance et frais de garantie.

Vos mensualités
370 € / mois
  • Montant emprunté
  • Coût des intérêts
  • Coût des intérêts :

    35523
    (d’après le taux d’intérêt annuel moyen : 3.3 %)
decoration
AF IMMOBILIER

27 annonces

Tremblay-en-France

Ce bien vous intéresse ?
*
*
*
*
*
*