Appartement à vendre 2 pièces • 1 chambre • 45.57 m2 Saint-Ouen-sur-Seine
Prix au m² : 7 483 € / m²
Référence 202509
Description du bien
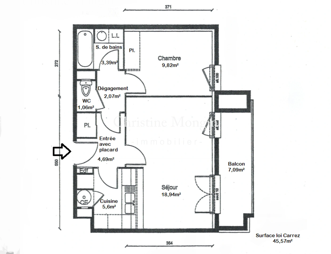
Idéalement situé à 2 pas du métro Saint-Ouen (ligne 14) qui permet de rejoindre le centre de Paris (Châtelet en 15mn) et RER Saint-Ouen (ligne C) à proximité du centre commercial Leclerc de Clichy. Nous vous proposons à la vente un appartement de 2 pièces de 46m² , situé dans un immeuble récent de standing sécurisé avec gardien. Cet appartement comprend : une entrée avec placard-penderie, une cuisine américaine aménagée ouverte sur le séjour de 19m² qui lui même donne sur un balcon de 7m² au calme sur jardin de la copropriété, ce deux pièces comprend également une chambre avec placard-penderie, une salle de bains et un wc séparé. Un emplacement de parking en sous-sol complète ce bien. Copropriété de 90 lots principaux, ce bien représente les 82/10 000èmes des parties communes générales de l'immeuble. Charges courantes annuelles : 1516 € avec eau froide, gardien, ascenseur. Les informations sur les risques auxquels ce bien est exposé sont disponibles sur le site Géorisques : www. georisques. gouv. fr
Caractéristiques du bien
-
Intérieur
- Surface 45.57 m2
- 1 Chambres
- 1 WC
- 1 Salle de bain/eau
-
Extérieur
- 1 balcon
-
Surfaces annexes
- Etage 2
- Bâtiment de 6 étages
-
Copropriété
- STANDING
- Nombre de lots: 90
-
Services supplémentaires
- Gardien
Diagnostics énergétiques
Consommation énergétique
Emission de gaz
LOCALISATION DU BIEN
Quartier Secteur 9 à Saint-Ouen-sur-Seine
Géorisque
Informations financières

Calcul de vos mensualités
- Montant emprunté
- Coût des intérêts
-
Coût des intérêts :
112161 €