Terrain à batir à vendre Drancy

268 000 €

Référence  VTE150011947

decoration todo
IMMO 5 Drancy

46 annonces

Drancy

Description du bien

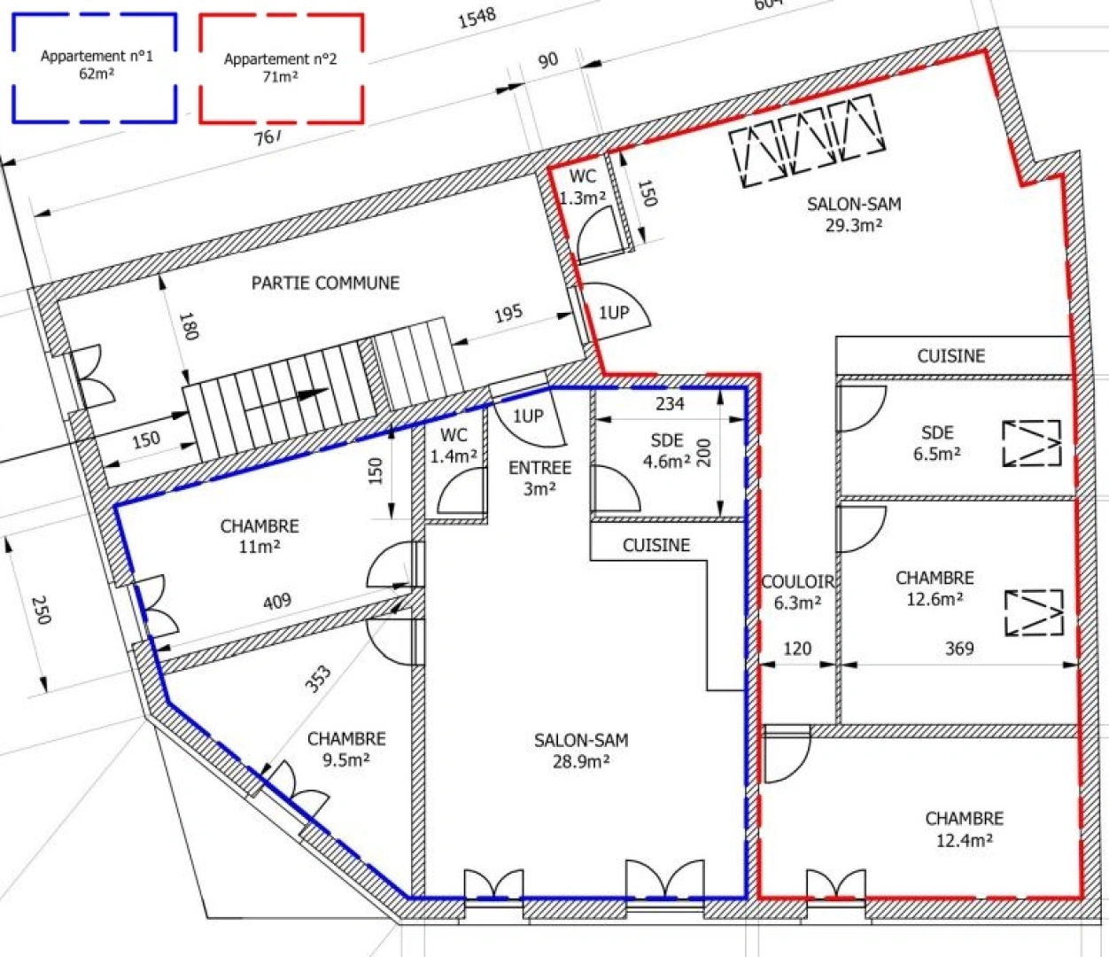
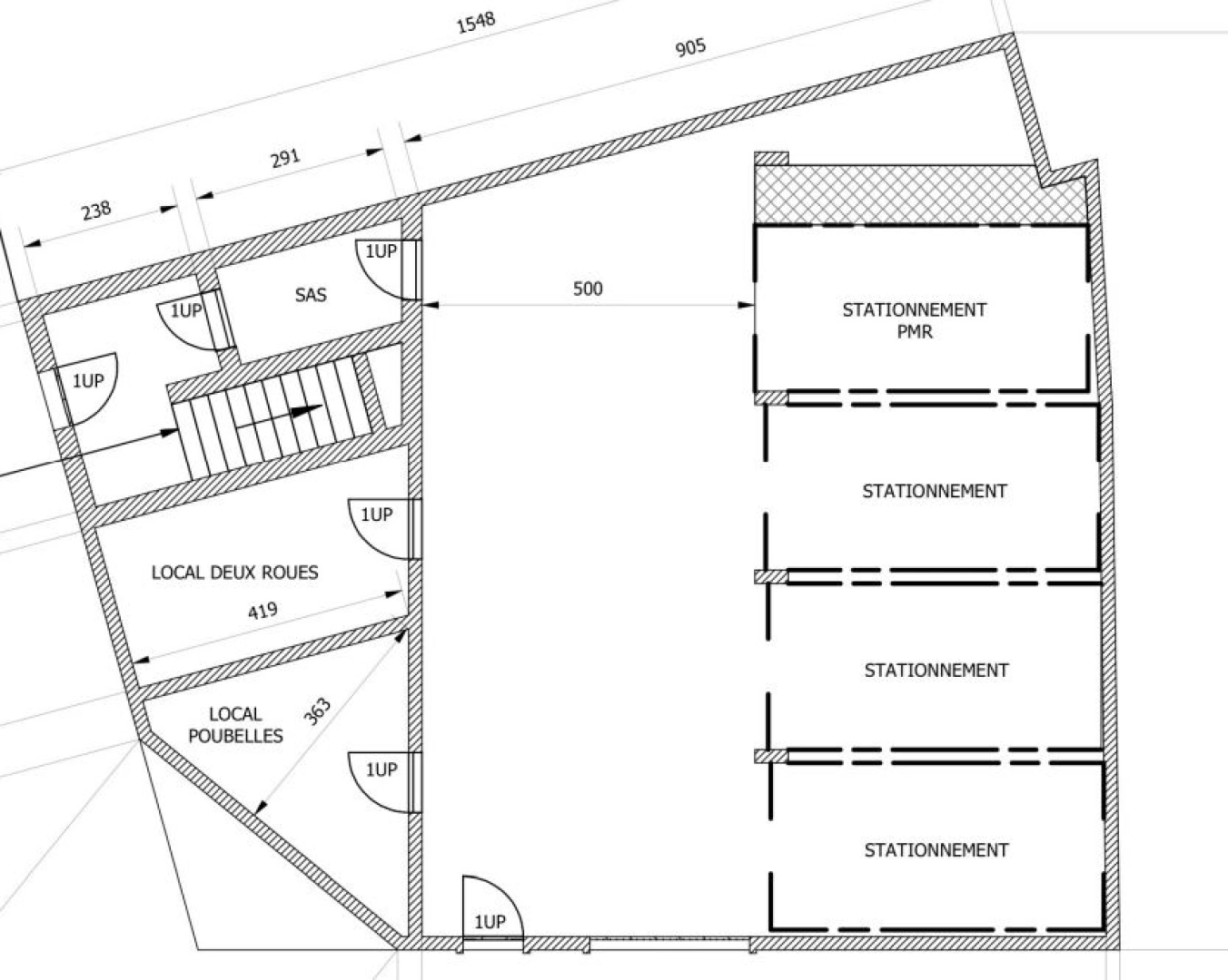
Chers bâtisseurs, investisseurs, marchands de biens, à vos téléphones !! UNIQUE à Drancy ! En plein centre-ville à seulement 15min à pieds du Métro ligne 5 Bobigny, ce terrain viabilisé et sur lequel un permis de construire un immeuble en R+2 composé de 3 logements de type T3 avec 4 places de parking est une opportunité unique car le nouveau PLUi en vigueur ne l'aurait pas permis.  Au pied d'un axe principal vous profiterez d'un emplacement de premier choix ! Idéal pour la revente de lots ou pour un investissement locatif. Le projet de construction d'immeuble propose : - Au RDC : 4 places de stationnement dont une handicapée, un local poubelle et un local 2 roues. - Au 1er : 1 appartement T3 de 62m2, 1 appartement T3 de 71m2 - Au 2eme : 1 appartement T3 de 73m2. Appelez-nous vite pour le réserver !! --> IMMO 5 Drancy

Afficher plus Afficher moins

LOCALISATION DU BIEN

Quartier Drancy Centre à Drancy

Points d'intérêts

Transports

Éducation

Services publics

Commerces & Services

Géorisque

Les informations sur les risques auxquels ce bien est exposé sont disponibles sur le site Géorisques https://www.georisques.gouv.fr

Informations financières

A propos du prix

Prix de vente

268 000 €

Calcul de vos mensualités

Simulez vos prêts en quelques clics !

*Les données de ce simulateur sont indicatives et non contractuelles. Calcul hors assurance et frais de garantie.

Vos mensualités
919 € / mois
  • Montant emprunté
  • Coût des intérêts
  • Coût des intérêts :

    88150
    (d’après le taux d’intérêt annuel moyen : 3.3 %)
decoration
IMMO 5 Drancy

46 annonces

Drancy

Ce bien vous intéresse ?
*
*
*
*
*
*