property

Appartement à vendre 4 pièces • 1 chambre • 80 m2

290 000 €

Appartement à vendre 4 pièces • 1 chambre • 80 m2 Créteil

290 000 €

Prix au m² : 3 625 € / m²

Référence  VTE-1794-F4

decoration todo
CVI - CRETEIL VAJOU IMMOBILIER

19 annonces

Créteil

Description du bien

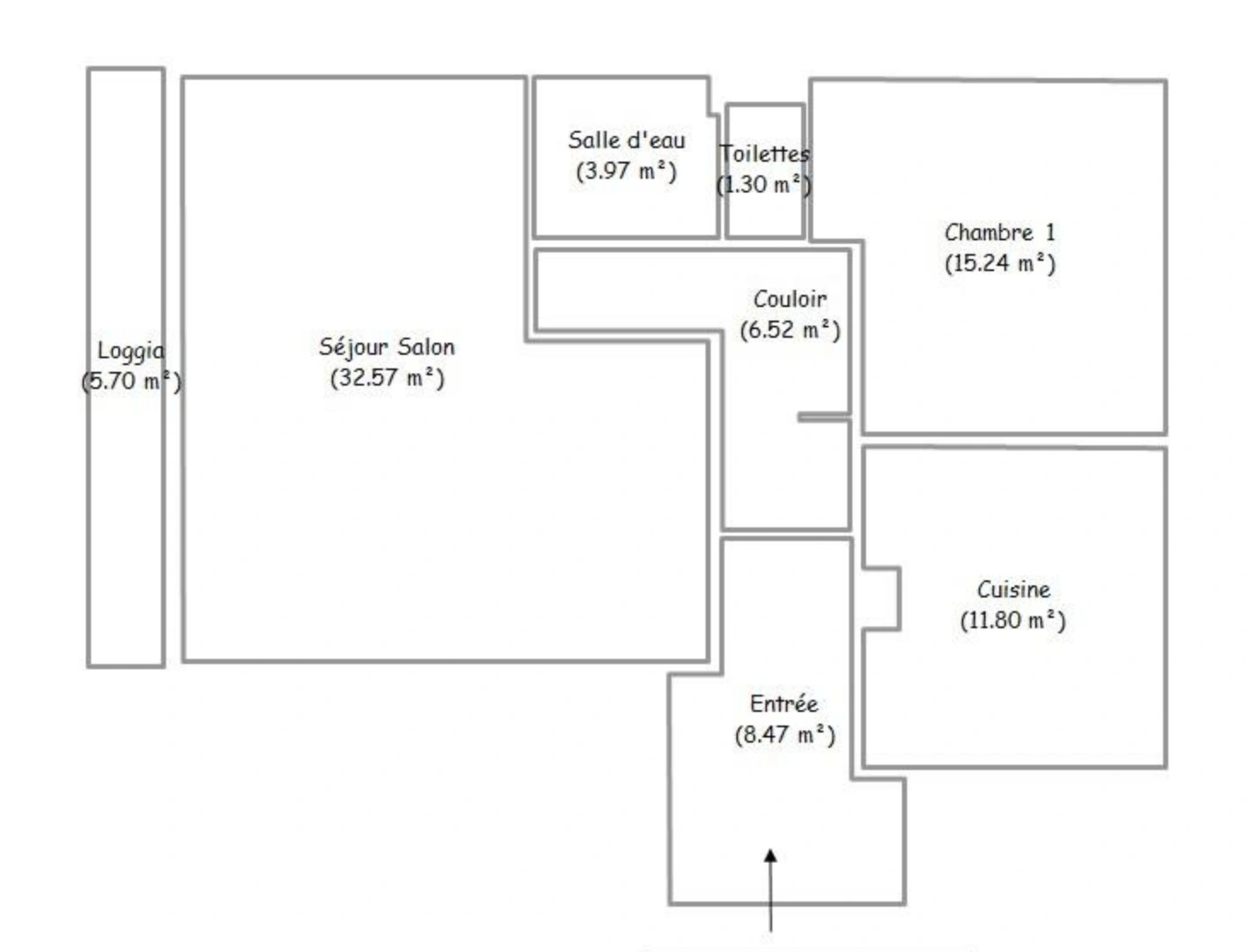
F4 (Modifié en spacieux 3 pièces) A 5 MINUTES A PIED DU METRO POINTE DU LAC - VUE DEGAGEE SUR CANAL; Dans copropriété de 1992, situé au 3ème étage, avec ascenseur. Entrée avec placards, spacieux double séjour (32,57m²), avec loggia de 5,70 m², cuisine avec espace dinatoire (11,80m²), dégagement, grande chambre (15,24m²) avec placard, salle d'eau et WC séparé. Box en sous-sol. Chauffage urbain (géothermie) compris dans les charges.

Afficher plus Afficher moins

Caractéristiques du bien

  • Intérieur

    • Surface 80 m2
    • 1 Chambres
    • Cuisine EQUIPEE
  • Extérieur

    • 1 balcon
  • Surfaces annexes

    • Etage 3
    • Bâtiment de 4 étages
    • Garage
  • Accessibilité

    • Accès PMR
  • Environnement

    • Exposition SUD-OUEST
    • Vue Dégagée

Diagnostics énergétiques

Consommation énergétique

Emission de gaz

LOCALISATION DU BIEN

Quartier Nouvelle Ville à Créteil

Points d'intérêts

Transports

Éducation

Services publics

Commerces & Services

Géorisque

Les informations sur les risques auxquels ce bien est exposé sont disponibles sur le site Géorisques https://www.georisques.gouv.fr

Informations financières

A propos du prix

Prix de vente

290 000 €

Prix au m² : 3 625 € / m²

  • Charge de copropriété
    289 € / an

    Montant annuel de la quote-part du budget prévisionnel des dépenses courantes.

  • Taxe foncière
    2 308 € / an

Calcul de vos mensualités

Simulez vos prêts en quelques clics !

*Les données de ce simulateur sont indicatives et non contractuelles. Calcul hors assurance et frais de garantie.

Vos mensualités
995 € / mois
  • Montant emprunté
  • Coût des intérêts
  • Coût des intérêts :

    95387
    (d’après le taux d’intérêt annuel moyen : 3.3 %)
decoration
CVI - CRETEIL VAJOU IMMOBILIER

19 annonces

Créteil

Ce bien vous intéresse ?
*
*
*
*
*
*