Immeuble à vendre 250 m2 Deuil-la-Barre

630 000 €

Prix au m² : 2 520 € / m²

Référence  630CRT IMMEUBLE

decoration todo
Agence VOVARD IMMOBILIER

56 annonces

Saint-Brice-sous-Forêt

Description du bien

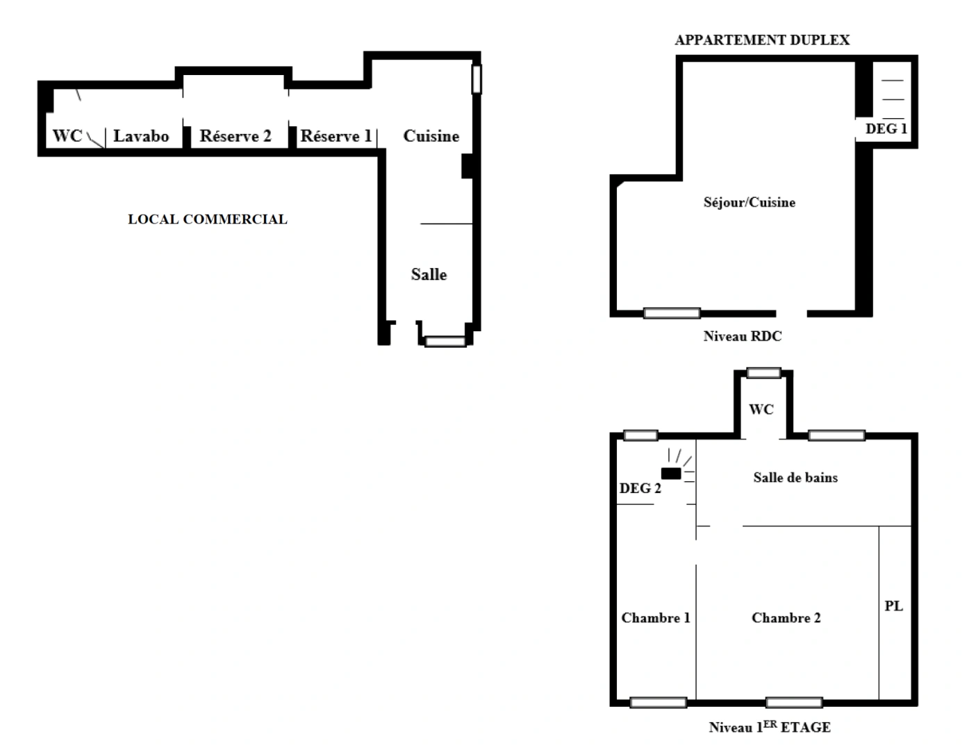
VOVARD IMMOBILIER tel : 01 39 86 06 70 vous propose - A vendre - Immeuble de rapport comprenant un local commercial 43,06 m², un appartement duplex 71,43 m² et un grand local commercial de 136,72 m², idéalement situés rue de l’Église à Deuil-la-Barre, à proximité immédiate du centre, des commerces, des écoles et à 10 minutes à pied de la gare SNCF (ligne H vers Paris Gare du Nord). DESCRIPTION DES LIEUX - Local commercial n°1 (43,06 m²) : salle 16,33 m², cuisine 13,39 m², réserves, lavabo et WC. local loué 1229 €/mois à la mairie de Deuil la Barre - Appartement duplex (71,43 m²) : séjour/cuisine 28,53 m², dégagements, chambre 1 de 11,26 m², chambre 2 de 15,66 m² avec placard de 3,40 m², salle de bains 8,67 m², WC. - Appartement loué 969 €/mois depuis le 30/09/2011 - Grand local commercial n°2 (136,72 m²) : plusieurs réserves (28,11 m², 9,16 m², 14,29 m², 17,32 m²), deux cuisines (8,64 m² et 5,16 m²), deux arrière-cuisines (22,32 m² et 9,16 m²), deux bureaux (7,54 m² et 10,22 m²) et salle d’eau. Cave de 21,13 m² en complément. - Local loué 2190 €/mois depuis le 08/03/2023 , soit un revenu brut total mensuel de 4388 €. Charges mensuelles : eau (Veolia) 135 €, taxe foncière : 388 € par mois. Revenu net mensuel : 3865 €. Immeuble vendu entièrement occupé, idéal pour investisseur recherchant un actif sécurisé avec un rendement élevé. Diagnostics disponibles dans le dossier, DOSSIER SUR DEMANDE DETAILLE !

Afficher plus Afficher moins

Caractéristiques du bien

  • Intérieur

    • Surface 250 m2
  • Surfaces annexes

    • Bâtiment de 3 étages
    • Cave
  • Copropriété

    • Nombre de lots: 14

Diagnostics énergétiques

Consommation énergétique

Emission de gaz

LOCALISATION DU BIEN

Quartier Centre-Côte à Deuil-la-Barre

Points d'intérêts

Transports

Éducation

Services publics

Commerces & Services

Géorisque

Les informations sur les risques auxquels ce bien est exposé sont disponibles sur le site Géorisques https://www.georisques.gouv.fr

Informations financières

A propos du prix

Prix de vente

630 000 €

Prix au m² : 2 520 € / m²

  • Taxe foncière
    4 470 € / an

Calcul de vos mensualités

Simulez vos prêts en quelques clics !

*Les données de ce simulateur sont indicatives et non contractuelles. Calcul hors assurance et frais de garantie.

Vos mensualités
2161 € / mois
  • Montant emprunté
  • Coût des intérêts
  • Coût des intérêts :

    207219
    (d’après le taux d’intérêt annuel moyen : 3.3 %)
decoration
Agence VOVARD IMMOBILIER

56 annonces

Saint-Brice-sous-Forêt

Ce bien vous intéresse ?
*
*
*
*
*
*