Appartement à vendre 4 pièces • 3 chambres • 86.45 m2 Pontoise
Prix au m² : 2 823 € / m²
Référence PRVAP13840213249
Description du bien
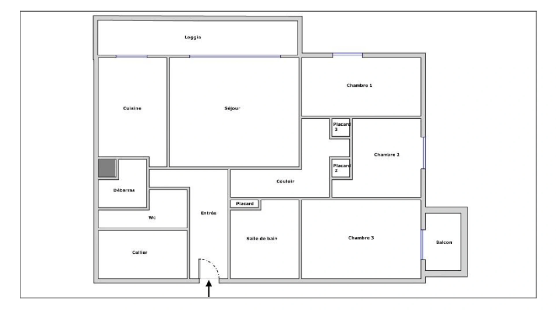
Cet appartement avec 3 chambres sur le territoire de Pontoise se trouve au 5ème étage avec ascenseur. Ce type d'habitation plaira certainement à votre petite famille. Contactez dès à présent l'agence immobilière CERGY - CPH si vous voulez voir ce bien. Propriété comprenant un coin salon de 17m², 3 chambres, un espace cuisine et une salle de bain. Sa surface intérieure mesure 86.45m² selon la loi Carrez. Ce domicile vous fait bénéficier d'un espace de stockage en sous-sol. Le calme du lieu est assuré grâce aux fenêtres à double vitrage. Dehors, l'appartement s'accompagne d'une grande logia de 7,4m² et d'un charmant balcon occupant une surface de 3.64m². Une place de parking privative complète le lot. Montant estimé des dépenses annuelles d'énergie pour un usage standard : entre 700 € et 990 € / Année de référence 2023 (nouveau diagnostic) Agence CPH Cergy - Philétas Rosnel
Caractéristiques du bien
-
Intérieur
- Surface 86.45 m2
- 3 Chambres
- 1 WC
- 1 Salle de bain/eau
- Cuisine EQUIPEE
-
Extérieur
- 1 balcon
-
Surfaces annexes
- Etage 5
- Bâtiment de 8 étages
- Cave
-
Copropriété
- ANCIEN
- Nombre de lots: 958
-
Environnement
- Exposition OUEST
- Vue Dégagée
- Environnement Calme
Diagnostics énergétiques
Consommation énergétique
Emission de gaz
LOCALISATION DU BIEN
Quartier Les Louvrais à Pontoise
Géorisque
Informations financières
A propos du prix
Prix de vente
Prix au m² : 2 823 € / m²
-
Taxe foncière
2 209 € / an

Calcul de vos mensualités
- Montant emprunté
- Coût des intérêts
-
Coût des intérêts :
80256 €