property

Maison à vendre 6 pièces • 4 chambres • 148.7 m2

529 000 €

Maison à vendre 6 pièces • 4 chambres • 148.7 m2 Saint-Brice-sous-Forêt

529 000 €

Prix au m² : 3 558 € / m²

Référence  529SFT_2

decoration todo
Agence VOVARD IMMOBILIER

53 annonces

Saint-Brice-sous-Forêt

Description du bien

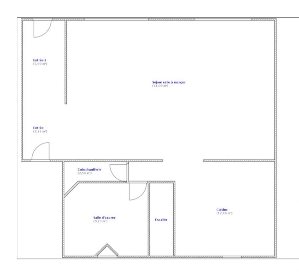
À Vendre : Maison de Charme de 148 m² dans le Quartier Prisé du Vieux Saint Brice Découvrez cette magnifique maison de quatre chambres, idéalement située dans le quartier paisible et recherché du Vieux Saint Brice, clos du château. - Surface Habitable : 148 m²- Chambres : 4 Entrée : Avec un grand placard-dressing, idéal pour ranger vos affaires dès votre arrivée à la maison. Séjour : Très lumineux, de 41 m, grâce à de vastes baies vitrées offrant une vue dégagée sur le jardin, exposition Ouest. Cuisine : Récemment équipée par un cuisiniste, de 17,6 m, avec un plan en pierre naturelle et un bar pour déjeuner. Lingerie : Avec salle d'eau, idéale pour les machines à laver et sèche-linge, surface de 9m2, comprenant une douche et des WC. une Chaufferie 1er Étage : 4 chambres, de 12,6 à 16 m2, dont une suite parentale avec salle de bain et double vasque. WC séparés. Le tout édifié sur un terrain de 350 m, exposition sud-ouest. La maison dispose d'un portail avec un espace de stationnement pour deux véhicules, ainsi qu'un vaste cabanon de 8 m au fond du jardin. Situation : À 20 minutes à pied de la gare SNCF, ligne H, conduisant à Paris (Gare du Nord) en 16 min. À 8 minutes des écoles primaire et maternelle. Rubrique Financière : Taxe Foncière : 3143 € Profitez du calme et de la sérénité de ce quartier résidentiel tout en étant proche de toutes les commodités.

Afficher plus Afficher moins

Caractéristiques du bien

  • Intérieur

    • Surface 148.7 m2
    • 4 Chambres
    • 2 WC
    • 1 Salle de bain/eau
    • Cuisine SEMI-EQUIPEE
  • Extérieur

    • Jardin de 280 m2
    • Terrasse
  • Environnement

    • Exposition OUEST
    • Vue JARDIN

Diagnostics énergétiques

Consommation énergétique

Emission de gaz

LOCALISATION DU BIEN

Quartier Vieux Saint-Brice à Saint-Brice-sous-Forêt

Points d'intérêts

Transports

Éducation

Services publics

Commerces & Services

Géorisque

Les informations sur les risques auxquels ce bien est exposé sont disponibles sur le site Géorisques https://www.georisques.gouv.fr

Informations financières

A propos du prix

Prix de vente

529 000 €

Prix au m² : 3 558 € / m²

  • Taxe foncière
    3 143 € / an

Calcul de vos mensualités

Simulez vos prêts en quelques clics !

*Les données de ce simulateur sont indicatives et non contractuelles. Calcul hors assurance et frais de garantie.

Vos mensualités
1814 € / mois
  • Montant emprunté
  • Coût des intérêts
  • Coût des intérêts :

    173998
    (d’après le taux d’intérêt annuel moyen : 3.3 %)
decoration
Agence VOVARD IMMOBILIER

53 annonces

Saint-Brice-sous-Forêt

Ce bien vous intéresse ?
*
*
*
*
*
*