property

Immeuble à vendre 7 pièces • 5 chambres • 200 m2

289 000 €

Immeuble à vendre 7 pièces • 5 chambres • 200 m2 Arbent

289 000 €

Prix au m² : 1 445 € / m²

Référence  179

decoration todo
LC IMMOBILIER

8 annonces

Lyon 03

Description du bien

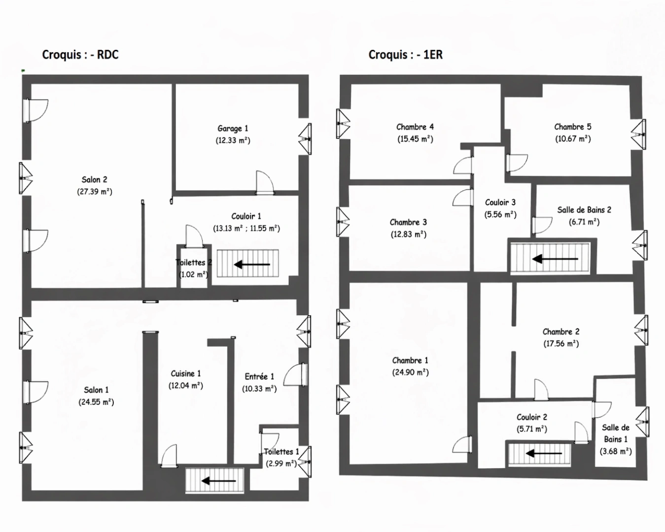
Votre agence LC IMMOBILIER vous propose à la vente, sur la commune d’Arbent, un ensemble immobilier rare, idéalement situé à proximité immédiate des commodités et des axes autoroutiers, tout en bénéficiant d’un environnement calme. Ce lot de deux maisons développe aujourd’hui environ 200 m² habitables, auxquels s’ajoutent un grenier de plus de 100 m² avec une belle hauteur sous plafond entièrement aménageable, ainsi qu’un sous-sol complet. Une terrasse d’environ 60 m² complète l’ensemble, avec la possibilité de la diviser selon les besoins. Actuellement organisé en deux parties distinctes déjà habitables, le bien offre une grande souplesse d’exploitation. Il peut être conservé en l’état, réuni en une seule habitation, ou repensé afin de créer plusieurs logements indépendants. La configuration permet d’envisager facilement la création de plusieurs lots, avec un potentiel supplémentaire dans les combles. L’ensemble est en bon état général. Les menuiseries sont en double vitrage, l’isolation est en place et les systèmes de chauffage sont récents, avec une chaudière gaz d’un côté et une pompe à chaleur de l’autre. Les travaux à prévoir restent principalement liés à l’aménagement et à l’optimisation des volumes. Ce bien s’adresse aussi bien à un investisseur souhaitant développer un immeuble de rapport, qu’à un projet familial ou à un acquéreur en quête d’un bien évolutif avec valorisation à la clé. Pour plus d'informations n'hésitez pas à contacter votre agence LC IMMOBILIER.

Afficher plus Afficher moins

Caractéristiques du bien

  • Intérieur

    • Surface 200 m2
    • 5 Chambres
    • 2 WC
    • Climatisation
    • 1 Salle de bain/eau
  • Extérieur

    • Terrasse
  • Surfaces annexes

    • Bâtiment de 3 étages
    • Cave

Diagnostics énergétiques

Consommation énergétique

Emission de gaz

LOCALISATION DU BIEN

Quartier Arbent à Arbent

Points d'intérêts

Transports

Éducation

Services publics

Commerces & Services

Géorisque

Les informations sur les risques auxquels ce bien est exposé sont disponibles sur le site Géorisques https://www.georisques.gouv.fr

Informations financières

A propos du prix

Prix de vente

289 000 €

Prix au m² : 1 445 € / m²

Calcul de vos mensualités

Simulez vos prêts en quelques clics !

*Les données de ce simulateur sont indicatives et non contractuelles. Calcul hors assurance et frais de garantie.

Vos mensualités
991 € / mois
  • Montant emprunté
  • Coût des intérêts
  • Coût des intérêts :

    95058
    (d’après le taux d’intérêt annuel moyen : 3.3 %)
decoration
LC IMMOBILIER

8 annonces

Lyon 03

Ce bien vous intéresse ?
*
*
*
*
*
*