property

Appartement à vendre 1 pièce • 36.3 m2

268 500 €

Appartement à vendre 1 pièce • 36.3 m2 Le Plessis-Robinson

268 500 €

Prix au m² : 7 397 € / m²

Référence  EUG12

decoration todo
Immo Conseil Invest

142 annonces

Clamart

Description du bien

Situé dans le quartier dynamique de Novéos, à deux pas du centre-ville et du Parc des Sports, ce quartier bénéficie d’une situation idéale alliant tranquillité et accessibilité. Vous profiterez de commerces de proximité, d’équipements publics et de nombreux espaces verts, offrant un cadre de vie agréable au quotidien. La résidence est parfaitement desservie : station T10 Novéos au pied de l’immeuble, proximité du tramway T6, connexion rapide à Paris via la ligne 13 et accès direct à l’A86. Tout est pensé pour faciliter vos déplacements, tout en profitant d’un environnement calme et apaisant. Entre standing et modernité, ce quartier séduit par son ambiance conviviale et sa qualité de vie. C’est l’endroit idéal pour allier confort, nature et connectivité au quotidien.

Afficher plus Afficher moins

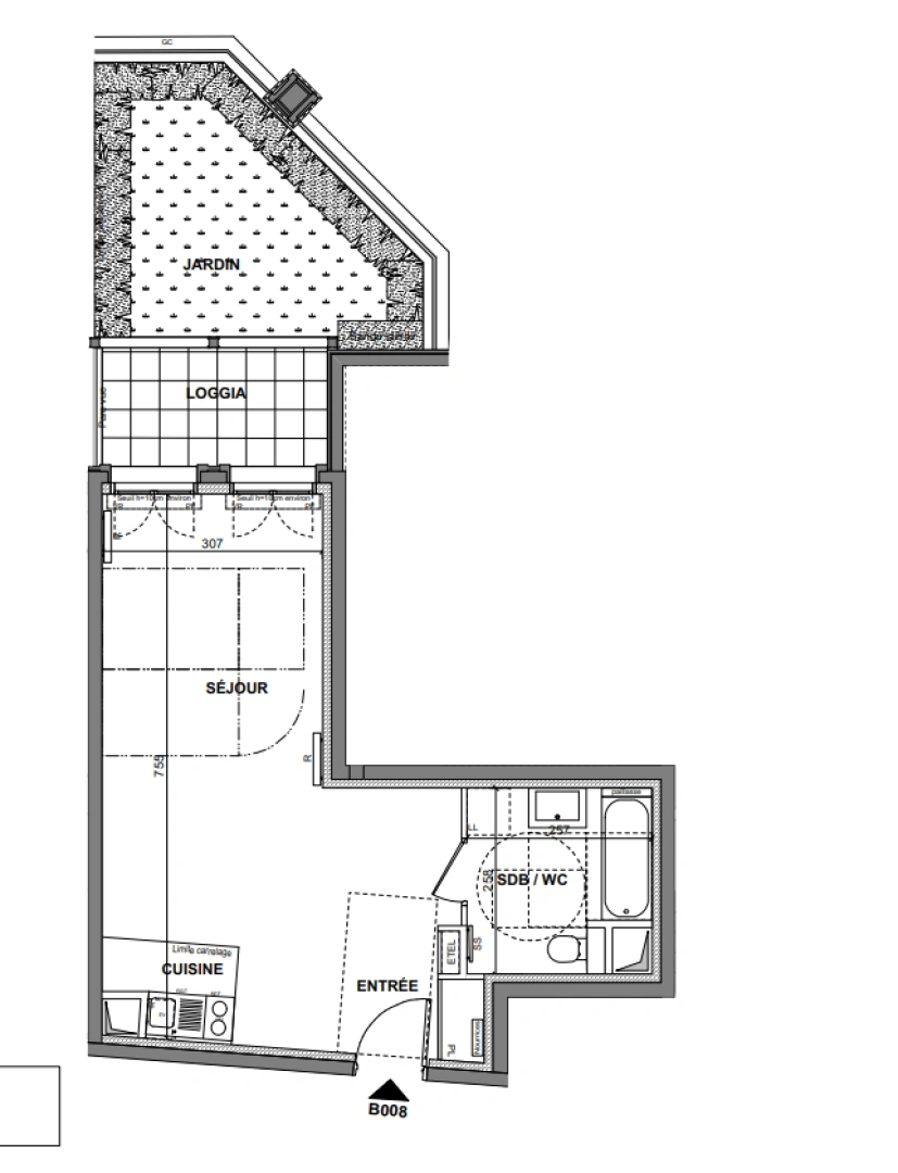
Caractéristiques du bien

  • Intérieur

    • Surface 36.3 m2
    • 1 WC
    • 1 Salle de bain/eau
  • Extérieur

    • Jardin de 13.7 m2
    • 5 balcon
  • Surfaces annexes

    • Bâtiment de 5 étages
  • Copropriété

    • STANDING
    • Nombre de lots: 119
  • Accessibilité

    • Accès PMR
  • Environnement

    • Exposition NORD
    • Environnement Commerçants

LOCALISATION DU BIEN

Quartier Joliot à Le Plessis-Robinson

Points d'intérêts

Transports

Éducation

Services publics

Commerces & Services

Géorisque

Les informations sur les risques auxquels ce bien est exposé sont disponibles sur le site Géorisques https://www.georisques.gouv.fr

Informations financières

A propos du prix

Prix de vente

268 500 €

Prix au m² : 7 397 € / m²

Calcul de vos mensualités

Simulez vos prêts en quelques clics !

*Les données de ce simulateur sont indicatives et non contractuelles. Calcul hors assurance et frais de garantie.

Vos mensualités
921 € / mois
  • Montant emprunté
  • Coût des intérêts
  • Coût des intérêts :

    88315
    (d’après le taux d’intérêt annuel moyen : 3.3 %)
decoration
Immo Conseil Invest

142 annonces

Clamart

Ce bien vous intéresse ?
*
*
*
*
*
*